

Two Kamloops restaurateurs sign on to open food hall this spring
A food hall like Assembly Chef’s Hall in Toronto or Pike Place Market in Seattle is on the horizon for Kamloops this spring.
ARPA Investments announced the plans for the food hall in its commercial space on the North Shore, The Colours on Spirit Square, in February 2020.
Now, a pair of well-known Kamloops restaurateurs have signed on to manage the food hall, and run its two bars and anchor restaurant.
“Although right now we’re in the midst of a pandemic, we see a bright future for people to come together to eat and socialize, which is why we’re moving forward on this project,” Steve Mitton said in a media release. He and his brother Jeff Mitton are also the partners behind local restaurants Mittz Kitchen and the Twisted Olive Steakhouse.
“I have had the good fortune of visiting food halls around the world and I believe we can take that successful concept from other markets and make it a success here in our community," Jeff said in the release.
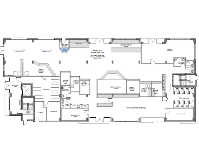
The food hall layout will consist of 10 stalls with the anchor restaurant, two bars, and seven additional 80 square foot stalls for partner restaurants to serve food, each using the large commissary kitchen to prep and cook.

"At full capacity, our Kamloops food hall will have seating for 222 with the potential for outdoor seating," Steve said. When they open for business, all COVID-19 protocols will be in place. We are hoping that by the time we open in the Spring of 2021, we can adapt as needed, much like what we’ve done with our other restaurants."
Food halls are expected by some to be the future of food retail, as they focus on bringing together mini-restaurants, bars, markets and shared kitchens while offering a large space for people to gather and enjoy.
“Four years ago, there were approximately 140 food halls across North America," Steve said. "Now the number is closer to 450 so it’s a popular concept."
The Kamloops food hall will also provide a great opportunity for up-and-coming restaurateurs to test the waters with a new business.
“As the anchor restaurant, our team will also help provide on-site support and collaboration to other restaurants,” Jeff said. “It’s a great opportunity for newer restaurants to take this as a next step before they commit to running their own larger restaurant because we know how much of a risk it is. This model helps to limit some of the risks and test concepts."
The management team will be focused on bringing unique, locally owned restaurants to the food hall.
Any restaurants interested in taking part in the project can contact Jeff Mitton directly by email.
To contact a reporter for this story, email Brie Welton or call (250) 819-3723 or email the editor. You can also submit photos, videos or news tips to the newsroom and be entered to win a monthly prize draw.
We welcome your comments and opinions on our stories but play nice. We won't censor or delete comments unless they contain off-topic statements or links, unnecessary vulgarity, false facts, spam or obviously fake profiles. If you have any concerns about what you see in comments, email the editor in the link above.
News from © iNFOnews.ca, . All rights reserved.
This material may not be published, broadcast, rewritten or redistributed.

Join the Conversation!
Want to share your thoughts, add context, or connect with others in your community?
You must be logged in to post a comment.









